Prodej byt Jizerská, Liberec

Byt 202 - Březová alej Krásně prosvětlené 3+kk v klidné části budovy

prodáno
Typ nemovitosti
byt
Dispozice
3+kk
Podlahová plocha
59,28 m2
Typ prodeje
prodej celku
Lokalita
Jizerská, Liberec
Ulice
Jizerská 192/2

Krásně prosvětlené 3+kk v klidné části budovy

  • Skvělá lokalita na cestě do Jizerských hor
  • Kousek do lesa, ale i do centra města
  • Škola, školky i služby přímo ve čtvrti
  • Vysoký standard zařízení jednotek i celého domu
  • Kvalitní plastová eurookna, příprava na předokení žaluzie
  • Podlahové vytápění, masivní třívrstvé podlahy, velkoformátová dlažba a obklady
  • Dům má vlastní studnu jako záložní zdroj užitkové vody
  • Celý dům je bezbariérový - přístup od auta až do bytu
  • Přípojka pro nabíjení elektromobilů a zastávka MHD hned u domu
  • Z vyšších pater skvělý výhled na Ještěd

Krásně prosvětlené 3+kk v klidné části budovy

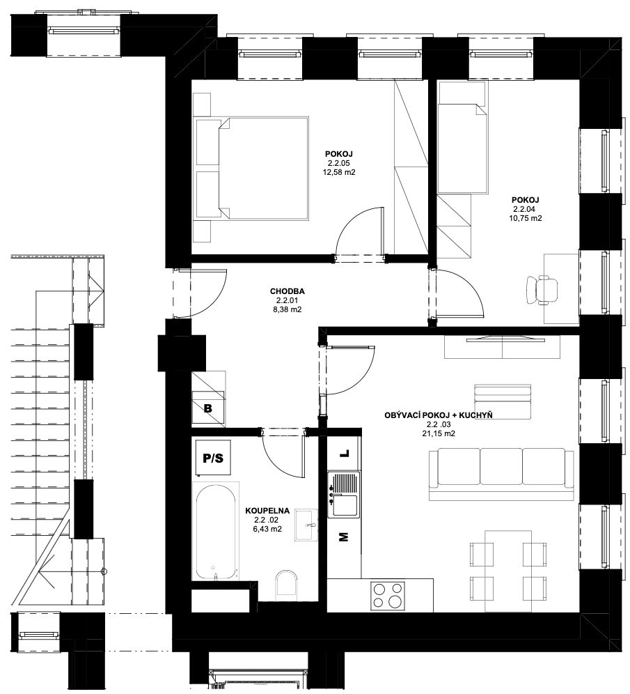
Bytová jednotka č. 202 – 3+kk v klidné části budovy. Bytová jednotka č. 202 o dispozici 3+kk a výměře 59,28 m² je situována ve 2. nadzemním podlaží v severovýchodní části původní, zrekonstruované budovy. Nabízí praktické dispoziční řešení a příjemnou atmosféru historického objektu. Součástí bytu je sklepní kóje.

Na místě historické budovy ve vyhledávané liberecké čtvrti Starý Harcov vzniká citlivou rekonstrukcí a moderní přístavbou nový developerský projekt Březová alej. Komorní ráz podtrhuje 9 luxusních bytových jednotek o dispozicích 2+kk až 4+kk, které budou zkolaudovány v 1. kvartálu 2026. Noví majitelé se mohou těšit na velkorysé, chytře řešené prosvětlené byty s nevšedními výhledy. Samozřejmostí jsou všechny moderní technologie a provedení ve vysokém standardu – masivní třívrstvé podlahy, izolační okna s trojskly, podlahové vytápění, optické připojení, velkoformátové dlažby, příprava na předokenní žaluzie, vlastní studna (záložní zdroj vody), úsporné tepelné čerpadlo, nabíjení elektromobilů, velký výtah a dostatek krytých i venkovních parkovacích stání. Viladům Březová alej se nachází na unikátním místě s perfektní občanskou vybaveností. Ve čtvrti převažuje vilová zástavba, která je protkána množstvím zeleně, ale přitom pouze 10 minut chůze od centra města a přímo u komunikace, která vede do Bedřichova – brány do Jizerských hor. Ke každé bytové jednotce náleží prostorná sklepní kóje. Konkrétní standardy zájemcům rádi představíme podrobněji. Ozvěte se nám. Rádi Vám osobně představíme celý projekt, všechny dostupné jednotky a seznámíme s možnostmi financování.

  • Možnost přikoupení až dvou parkovacích stání (kryté i nekryté).
  • Cena nekrytého stání je 300 000 Kč vč. DPH a 500 000 Kč vč. DPH za kryté parkovací stání.
  • Cena předzahrádky k bytu 101 a 103 je zpoplatněna 200 000 Kč vč. DPH.
  • Energetická třída B.


Realitní kancelář Severské.cz

Fotky nebo video neřeknou vše, každou nemovitost je lepší vidět osobně. Rádi Vás vezme na prohlídku – třeba ještě dnes. 😉

Chci na prohlídku

Důležité informace

Rok výstavby 2026
Konstrukce smíšená, zděná
Stav rekonstruovaný objekt + novostavba
Vlastnictví osobní
Patro 2. NP
Parkování krytá i nekrytá
Vodovod vodovod
Topení podlahové, vlastní plynový kotel
Plynovod teplné čerpadlo
Elektřina 230V, 400V
Kanalizace veřejná kanalizace
Telekomunikace internet
Přístupová komunikace asfaltová
Štítek energetické náročnosti třída B
Vybavení
Výtah
K nastěhování Q1/2026

Lokalita

Kalkulačka financování

byt na prodejbyt na prodej Lidové sadybyt 3+kk na prodej


Realitní kancelář Severské.cz

Specialisté na reality v Liberci, Jablonci, Turnově a Jizerských horách

Chci prodat nemovitost