Byt 101 - Březová alej Světlé 2+kk s velkou předzahrádkou v původním zrekonstruovaném objektu
Máte zájem o prohlídku?
Pojďme se setkat na místě, představíme Vám všechny detaily a zodpovíme dotazy…
- Typ nemovitosti
- byt
- Cena
- 7 082 500 Kč
- Dispozice
- 2+kk
- Podlahová plocha
- 55,06 m2
- Plocha pozemku
- 119,43 m2
- Typ prodeje
- prodej celku
- Lokalita
- Jizerská, Liberec
- Ulice
- Jizerská 192/2
Světlé 2+kk s velkou předzahrádkou v původním zrekonstruovaném objektu
- Skvělá lokalita na cestě do Jizerských hor
- Kousek do lesa, ale i do centra města
- Škola, školky i služby přímo ve čtvrti
- Vysoký standard zařízení jednotek i celého domu
- Kvalitní plastová eurookna, příprava na předokení žaluzie
- Podlahové vytápění, masivní třívrstvé podlahy, velkoformátová dlažba a obklady
- Dům má vlastní studnu jako záložní zdroj užitkové vody
- Celý dům je bezbariérový - přístup od auta až do bytu
- Přípojka pro nabíjení elektromobilů a zastávka MHD hned u domu
- Z vyšších pater skvělý výhled na Ještěd
Světlé 2+kk s velkou předzahrádkou v původním zrekonstruovaném objektu
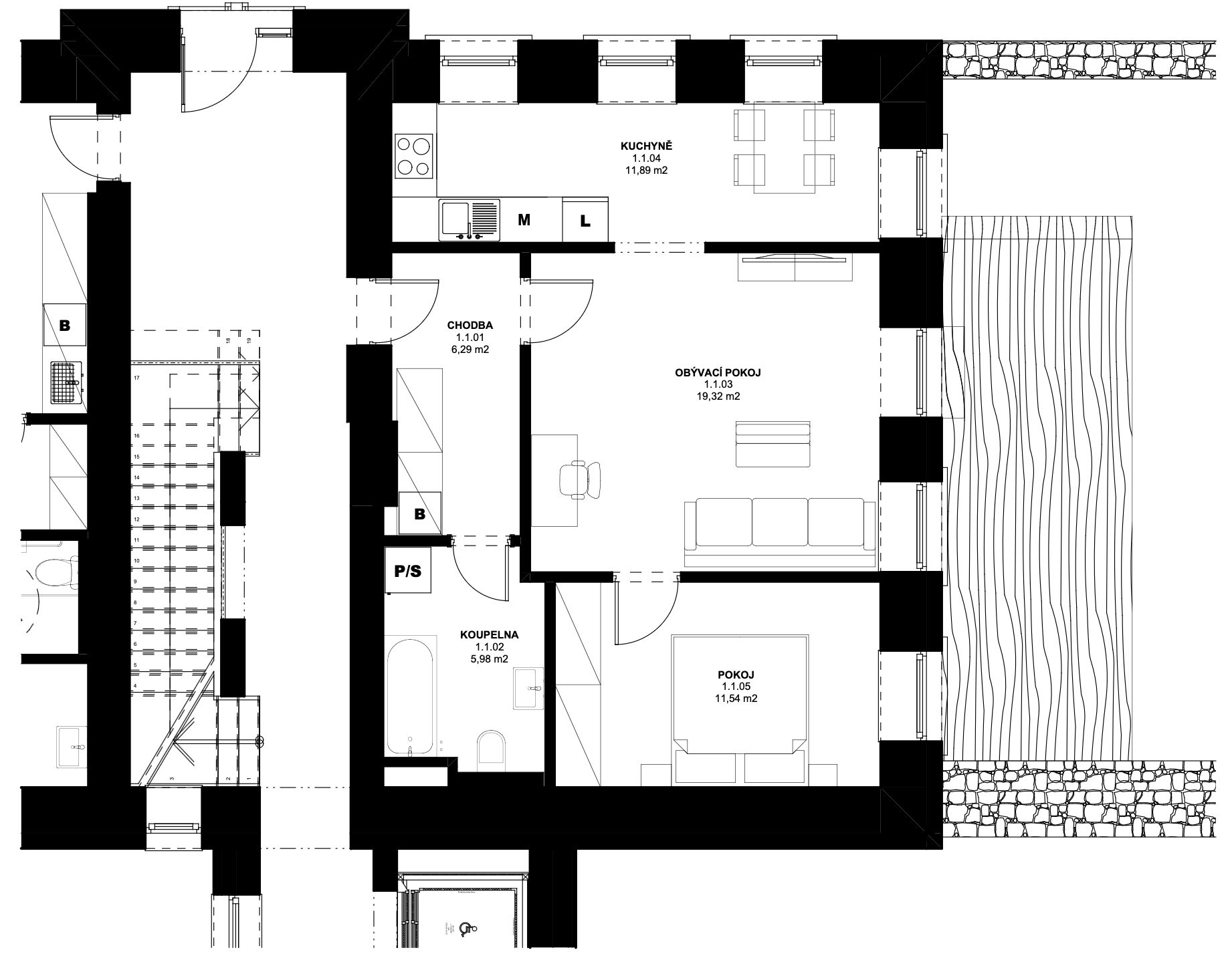
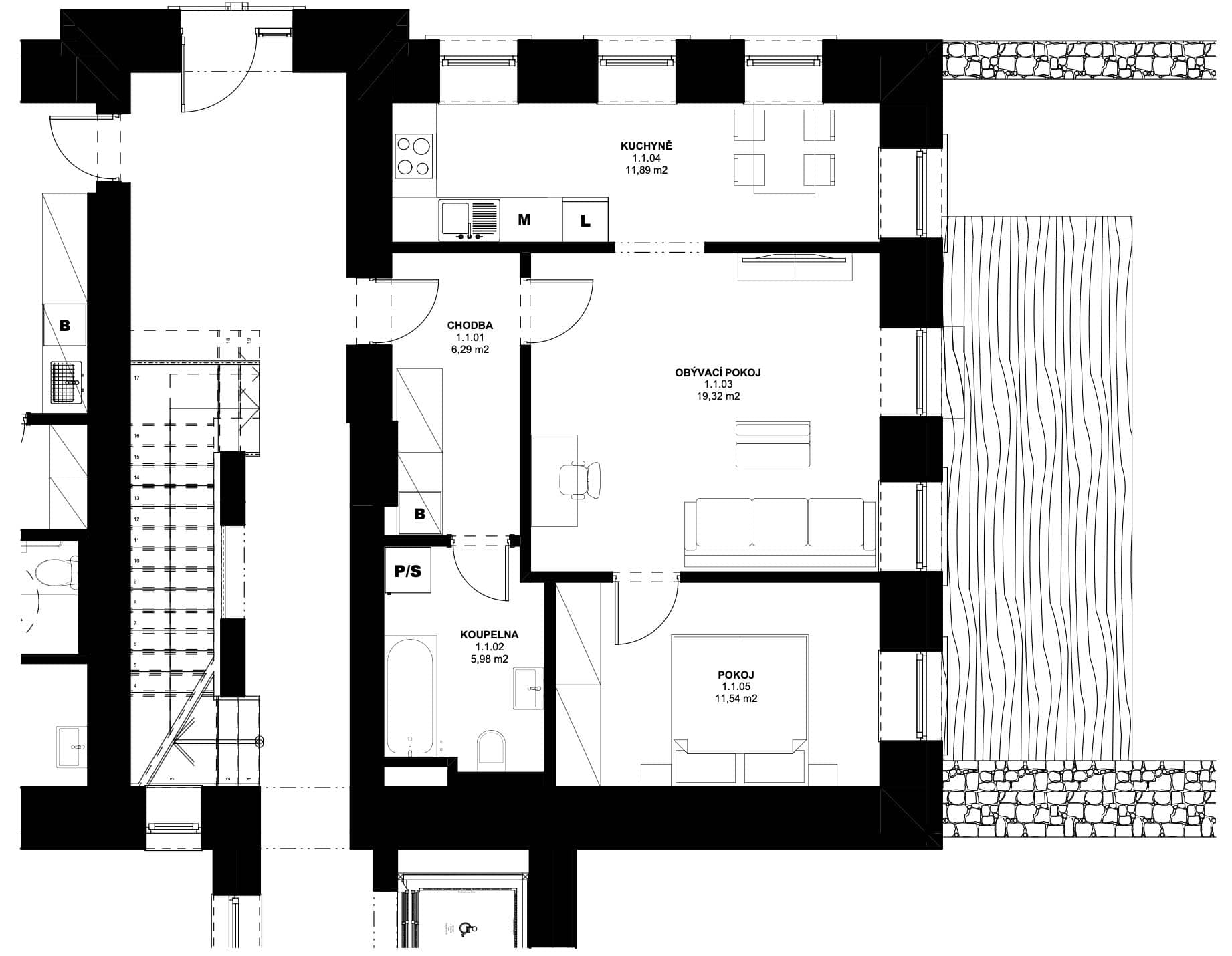
Bytová jednotka č. 101 má dispozici 2+kk a výměru 55,06 m2, nachází se v 1. NP a nabízí předzahrádku o ploše 45 m2. Jde o bytovou jednotku s největší, východně orientovanou terasou. Byt je situován v severovýchodní části původní, kompletně zrekonstruované budovy. Součástí bytu je předzahrádka a sklepní kóje.
Na místě historické budovy ve vyhledávané liberecké čtvrti Starý Harcov vzniká citlivou rekonstrukcí a moderní přístavbou nový developerský projekt Březová alej. Komorní ráz podtrhuje 9 luxusních bytových jednotek o dispozicích 2+kk až 4+kk, které budou zkolaudovány v 1. kvartálu 2026. Noví majitelé se mohou těšit na velkorysé, chytře řešené prosvětlené byty s nevšedními výhledy. Samozřejmostí jsou všechny moderní technologie a provedení ve vysokém standardu – masivní třívrstvé podlahy, izolační okna s trojskly, podlahové vytápění, optické připojení, velkoformátové dlažby, příprava na předokenní žaluzie, vlastní studna (záložní zdroj vody), úsporné tepelné čerpadlo, nabíjení elektromobilů, velký výtah a dostatek krytých i venkovních parkovacích stání. Viladům Březová alej se nachází na unikátním místě s perfektní občanskou vybaveností. Ve čtvrti převažuje vilová zástavba, která je protkána množstvím zeleně, ale přitom pouze 10 minut chůze od centra města a přímo u komunikace, která vede do Bedřichova – brány do Jizerských hor. Ke každé bytové jednotce náleží prostorná sklepní kóje. Konkrétní standardy zájemcům rádi představíme podrobněji. Ozvěte se nám. Rádi Vám osobně představíme celý projekt, všechny dostupné jednotky a seznámíme s možnostmi financování.
- Možnost přikoupení až dvou parkovacích stání (kryté i nekryté).
- Cena nekrytého stání je 300 000 Kč vč. DPH a 500 000 Kč vč. DPH za kryté parkovací stání.
- Cena předzahrádky k bytu 101 a 103 je zpoplatněna 200 000 Kč vč. DPH.
- Energetická třída B.
Fotky nebo video neřeknou vše, každou nemovitost je lepší vidět osobně. Rádi Vás vezme na prohlídku – třeba ještě dnes. 😉
Důležité informace
| Rok výstavby | 2026 |
|---|---|
| Konstrukce | smíšená, zděná |
| Stav | rekonstruovaný objekt + novostavba |
| Vlastnictví | osobní |
| Patro | 1. NP |
| Parkování | krytá i nekrytá |
| Vodovod | vodovod |
| Topení | podlahové, vlastní plynový kotel |
| Plynovod | teplné čerpadlo |
| Elektřina | 230V, 400V |
| Kanalizace | veřejná kanalizace |
| Telekomunikace | internet |
| Přístupová komunikace | asfaltová |
| Štítek energetické náročnosti | třída B |
| Vybavení | ✗ |
| Výtah | ✓ |
| K nastěhování | Q1/2026 |
Lokalita
Kalkulačka financování
Přílohy
byt na prodejbyt na prodej Lidové sadybyt 2+kk na prodej






